20・30代に人気の木目を多く
取り入れたデザインを採用。
大空間の吹抜けから光が差し込み、
明るく開放的な雰囲気を演出します。
間接照明を活用し、陰影を楽しむ
照明計画を採用しています。
1階の照明はスマホで操作可能で、
調光・調色を自由に変更できます。
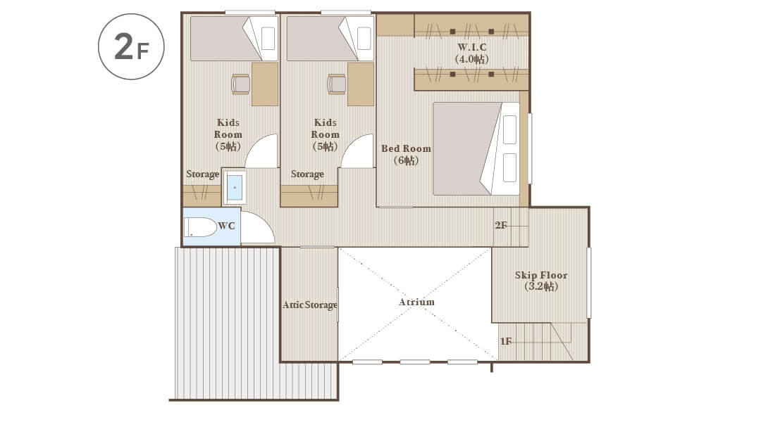
小下がりやスキップフロアで
目線の高さが変わる工夫があり
隠れ家のような小屋裏収納には内窓を設置。
高品質な仕様で、長く大切に暮らせる住まいです。
注目ポイント
大空間の吹抜けで開放的な雰囲気
天井の高い吹抜けから差し込む自然光が、家中を明るく包み込みます。広がりのある空間設計で、家族の団らんがより楽しくなるリビングを体感してください。お子様がのびのびと遊べる安心感のある明るさです。
小下がりやスキップフロア
床の段差や高さの変化が、空間にアクセントを加え、飽きのこない楽しい家づくりを実現します。お子様の遊び場や家族のちょっとしたリラックススペースにぴったり。視線が変わることで、お部屋全体が広く感じられる工夫です。
スマホで、調光・調色を自由に操作
リビングの雰囲気を指先ひとつで自在にアレンジ。柔らかな間接照明で落ち着いた夜を演出したり、明るい光で活気のある朝を迎えたりできます。家族のライフスタイルに合わせた快適な暮らしを実現します。
高品質な仕様を採用
細部までこだわった高品質な建材と設備で、安心・快適な暮らしを長く支えます。お若いご家族でも、将来を見据えた堅実な住まいを提供します。自然素材とモダンなデザインが調和した、洗練された空間です。
間取り図
内観イメージ
家族の笑顔が集まる住まいへようこそ。
ご夫婦とお子様が快適に過ごせる
理想の平屋をご紹介します。
自然光がたっぷりと差し込むリビング
こだわりのオールステンレスキッチン
機能性とデザインを兼ね備えた洗面所
プライバシーを守りながらも
開放感を楽しめるリビング空間。
ぜひ、この特別な住まいをご覧いただき
未来の生活をイメージしてみてください。
注目ポイント
明るい木目で温もりあるリビング
明るい木目のフローリングが広がるリビングは、家族が集う温かい空間。大開口のサッシから差し込む自然光が、心地よいひとときを演出します。
こだわりのキッチン
お施主様のこだわりが詰まったオールステンレスのフラットキッチン。使い勝手とデザインを両立し、毎日の料理が楽しくなること間違いなしです。
洗練された照明付き洗面化粧台
メイクに最適な照明を備えた洗面化粧台は、朝の準備をスムーズに。ノイズレスなダウンライトが、洗練された空間を演出します。
プライバシーを守る設計
道路から玄関が見えにくい間取りと、プライバシーに配慮した庭計画が可能なリビング。安心して家族の時間を楽しめる住まいです。
間取り図
内観イメージ
実例動画
私たち近江建設の
YouTubeチャンネルでは
過去の実例を
多数アップしております。
ぜひご覧になって、マイホームの
ご参考にしてください。
愛猫と暮らす
幸せに暮らすために必要なこととは?
子供のお便りや連絡帳で溢れるLDKに
マグマジックでツルッと綺麗に!
非常に開放感あふれる間取り
シンプルな色使いなスマートな内装
小上がりリビングと注文収納で魅せる
こだわりの内装デザイン